Tel
0523-8733 8088
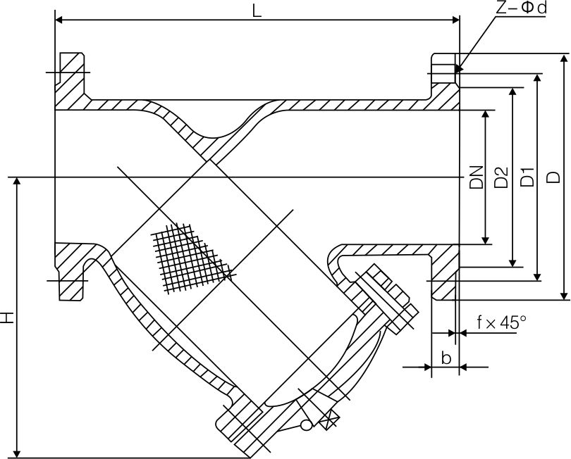
This valve is an indispensable device on the transmission medium pipeline, usually installed at the inlet end of a pressure reducing valve, relief valve, constant water level valve, or other equipment, to eliminate impurities such as dirt and rust in the medium and protect the normal use of the valve and equipment.






