Tel
0523-8733 8088
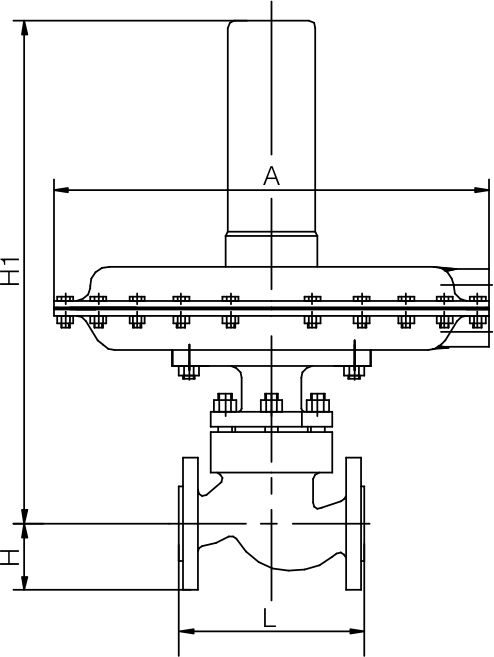
Self operated micro (differential) pressure regulating valve
Product overview
Valve core type: single seat (ZZVP, ZZCP), double seat (ZZVN, ZZCN)
Function type: post valve pressure regulation for pressure relief (B-type) and pre valve pressure regulation for pressure relief (K-type)
Nominal diameter: DN15mm~300mm (1/2 "~12")
Flow characteristics: fast opening
Adjustment accuracy: ± 5-10%
Operating temperature: ≤ 160 ℃
Nominal pressure: PN series: PN1.0MPa, 1.6MPa, Class series: Class150
Connection method: flange type, welding type
Flange focal distance: in accordance with GB/T12221
Type of actuator: diaphragm type, bellows type
Surface coating: silver gray (epoxy resin); When the valve body is made of stainless steel, the body is not coated
The ZZV (C) type self operated micro (differential) pressure regulating valve does not require external energy. It uses the energy of the controlled medium as the power source and introduces an actuator to control the position of the valve core to change the interception area, thereby changing the pressure difference and flow rate at both ends, achieving the goal of controlling the pressure stability (post valve type) or pressure relief (pre valve type) behind the valve. It has the advantages of sensitive action, good sealing performance, and small pressure fluctuations, and is widely used for micro pressure control of gases in various industrial equipment.






