自力式微(差)压调节阀

产品概况

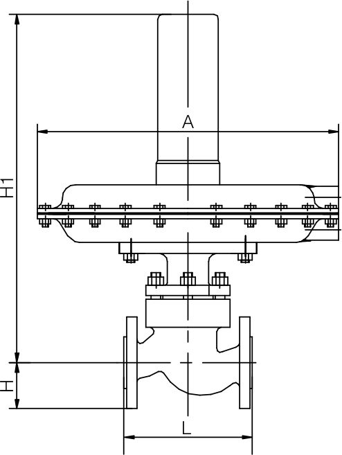
阀芯型式:单座(ZZVP、ZZCP)、双座(ZZVN、ZZCN)

作用型式减压用阀后压力调节(B型)和泄压用阀前压力调节(K型)

公称通径DN15mm~300mm(1/2"~12")

流量特性快开

调节精度±5~10%

使用温度≤160℃

公称压力PN 系列: PN1.0MPa、1.6MPa,Class系列: Class150

连接方式法兰式、焊接式

法兰距符合GB/T12221

执行机构型式膜片式、波纹管式

表面涂层银灰色(环氧树脂);阀体为不锈钢时,本体不加涂层

产品详情

ZZV(C)型自力式微(差)压调节阀无需外加能源,利用被控介质自身能量作为动力源,引入执行机构控制阀芯位置来改变截流面积,从而改变两端的压差和流量,达到控制阀后压力稳定(阀后型)或泄压(阀前型)的目的。具有动作灵敏,密封性好,压力波动小等优点,广泛应用于各种工业设备中气体的微压力控制。


自力式微(差)压调节阀(图1)


自力式微(差)压调节阀(图2)

产品推荐